
福岡市西区姪浜 ヴィンテージマンションリノベ完成見学会
オーナー様のご厚意でマンションリノベーション完成見学会を開催します。お引き渡し前のお住まいを見学できる大変貴重な機会ですので、実際のリノベ空間をぜひご体感ください。
〜RENOVATION STORY〜
30代ご夫婦お二人暮らしのためのマンションリノベーション。
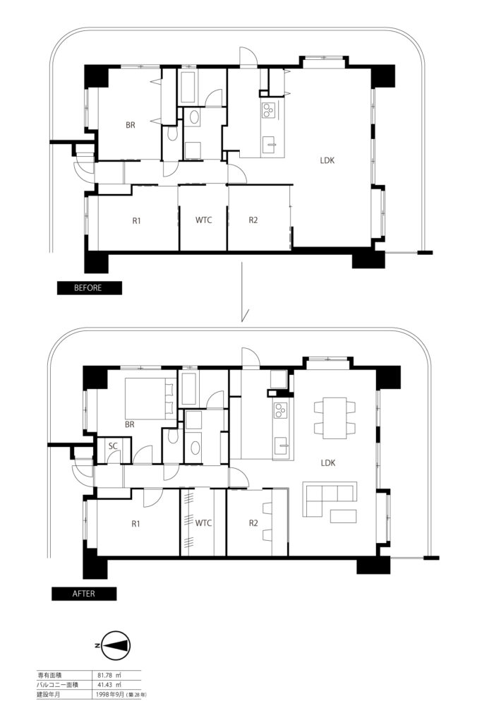
福岡市西区姪浜駅より徒歩9分、1998年築・約82㎡の3LDK+Sタイプの中古マンションを物件探しの段階からサポートさせていただきました。リノベ済み物件として販売されていたため、既存の空間を活かしながら理想の空間デザインに近づけるためのプランニングを選択。ご夫婦それぞれが落ち着いて仕事や趣味に集中できる場所を持ちながら、住まいの中心であるLDKを通じて自然とつながりが感じられる住空間となりました。この機会にリノベーションのリアルな事例をぜひご覧ください。
見学地:福岡市西区姪浜 ※詳細は予約時にご案内いたします。

物件データ
所在地:福岡市西区 種別:マンション 専有面積:81.78㎡ 建築年:1998年(築28年)
見学会後の個別相談もご予約受け承ります。
ご希望の方には、見学会で実際のリノベ空間をご体感いただいたあと、引き続き個別相談もご予約承ります。(申込みフォーム「ご希望・ご質問など」の欄に「個別相談希望」とお書き添えください)
実際に設計に携わる一級建築士と、お客様の今後のリノベーションプランについて、より具体的に詳しくお話をお伺いします。(いずれも無料)ご自宅のリノベーションをご希望の場合は、間取り図などをお持ちいただけるとよりお話がスムーズです(所要時間の目安:見学会30分+個別相談30分)
✳︎当日の予約状況により、個別相談を別日であらためてご案内する場合もございます。
- リノベーション向き物件の探し方
- 資産としての物件探しのポイント
- 資金計画と住宅ローン(不動産購入とお金のこと)
- リノベの最新断熱事情をご紹介
不動産から相談できる。それもリノベエステイトの魅力です。
リノベエステイトを展開するアポロ計画では、福岡リノベの黎明期である2000年の頃から「リノベエステイト」というブランドを立ち上げてリノベーション業界を牽引しています。その名に込められている「エステイト」は、もちろん不動産の意味。一般的な建築事務所では、なかなか提供していなかった、不動産の取り扱いとワンストップサービスを打ち出したサービスを立ち上げました。リノベーションというこれまでになかった概念を形にするために、業界のパイオニアとしてさまざまな試行錯誤に挑戦してきました。空間の相談ができるだけでなく、リノベーションに最適な不動産をご紹介できる。それも、リノベエステイトならではの強みです。
参加者の声
新築マンションも検討していましたが、選択肢として中古マンションのリノベーションも視野に入れていたので、実際にリノベーションした空間を見学したいと思い参加しました。生活導線や意匠などとても魅力的な空間でした。 (50代前半/男性)
都心の不動産の探し方、コツなどが知れてよかったです。資産としてのリノベーションを考えるきっかけになりました。 (40代/ご夫婦)

RENOVATION STYLEBOOK をプレゼント
ご来場のお客様にはリノベエステイトの事例を紹介したスタイルブック他、リノベーションの情報が満載のスタイルブックをプレゼント。リノベーションの参考にぜひご活用ください!
セミナー後の個別相談も承ります。
リノベエステイトでは、戸建て・マンション、持ち家の有無にかかわらず、リノベーション・不動産探し・住宅ローン等の無料相談を随時承っています。(セミナー後のお申し込みも受け付けております。)セミナー後、個別相談をご希望の方はお気軽にコメントやご連絡頂ければと思います。
会場情報
@福岡市西区姪浜近郊
Information
日時:
2026年3月14日(土) 10:00-15:00(最終受付14:30))
場所:福岡市西区姪浜近郊 ※現地集合/場所等の詳細はご予約時にご案内いたします。
参加費:無料(事前お申し込み要)
ご相談やリノベーション打合せには上記に限らず対応します。営業日時でのご相談同様、事前にご予約ください。
ご参加申込み
参加ご希望の方は、下記のフォームに必要事項をご入力のうえ「内容を確認する」をクリックし、送信してください。