2025#001都心に佇む
約140㎡プレミアムレジデンスの再創造
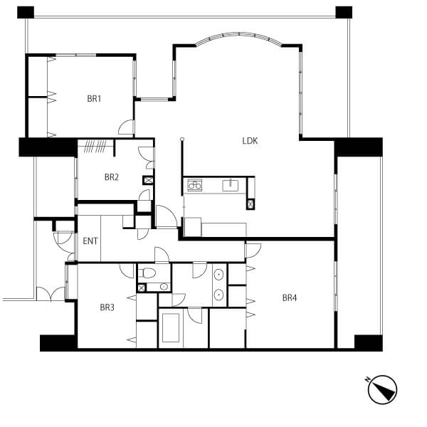
40代のご夫婦と10代のお子さま2人のために用意したのは、都心でゆったりと時を重ねるための住まい。郊外の戸建からライフステージに合わせて都心へ拠点を移すにあたり、2000年代初頭築・約140㎡という、今や市場でも稀少性の高いプレミアム住戸を取得。そこへフルオーダーのリノベーションを施し、新たな価値を纏わせた。 100㎡超の住戸が全体のわずか1〜4%とされる中、贅沢な器を活かしながら、4LDKの間取りを3LDK+WIC+URへ再構築。家族それぞれの過ごし方や余暇のスタイルに寄り添う機能をLDKへ巧みにレイヤリングしている。
ひとつの大きな空間に、緩やかな距離感と確かな独立性が共存する設え。家族が自然と集い、思い思いの時間を心地よく享受できる——。そんな“余白ある上質な日常”を静かに育む住まいとした。
- 場所
- 福岡市中央区
- 用途
- 集合住宅
- 人数
- 夫婦+子ども2人
- 構造
- SRC13階/14階
- 面積
- 138.29 ㎡

間取りのご要望は、ダイニングとLDKをゆるやかにゾーニングし、「食べる」と「くつろぐ」を心地よく切り替えられるリズムを住まいに宿すこと。LDKは中庭を包み込むように配置され、ベランダと室内が穏やかに連続する、伸びやかな広がりを生み出している。
ダイニングテーブルとリビングのラウンドテーブルには、「Ritzwell /リッツウェル」をセレクト。本邸の佇まいに合わせて新調した家具が、空間の品格と統一感を一段と高めている。
ダイニングの一角には、ご主人様のご希望でマッサージチェアを配置したコージースペースを設置。中庭とゆるやかに連続するその場所は、日常の喧騒から心身をほどくための「私的なリトリート」として機能している。
また、ダイニング内に存在するPS(パイプスペース)にはミラーをあしらい、空間に溶け込むようデザイン。視線の流れを妨げない工夫により、伸びやかな広がりと洗練を両立させている。
リビングには、フランク・ロイド・ライト作「タリアセン」が静かな存在感を放ち、空間に品格を添える。カーテンは全居室でフジエテキスタイルを選定し、住まい全体を統一感のある上質なトーンでまとめた。
引っ越しのたびに買い足してきた観葉植物は、どれも暮らしに寄り添ってきた思い入れのあるものばかり。丁寧に手入れされた緑が、空間に成熟した落ち着きをもたらしている。
三面採光の角住戸で、明るい日差しが心地よく差し込む恵まれた住環境でありながら、既存の断熱性能には弱点があった。そこで、外気に面する壁と天井には新たに断熱材を施し、さらに内窓を追加することで熱環境を大幅に改善。加えて、各居室とリビングの計4箇所に熱交換器を導入し、高断熱・高気密の快適性と省エネルギー性能を兼ね備えた住まいへとアップグレードしている。


キッチンには、オーナー様が以前から愛用されていたパナソニックのペニンシュラ型を再びセレクト。リビング・ダイニングとの一体感と開放感を高めつつ、家族とのコミュニケーションが生まれやすいレイアウトが魅力。
オープンな佇まいでありながら、手元をほどよく隠す設計により、暮らしの気品と実用性を両立した一台となっている。
収納力のあるバックセットとキッチン奥には冷蔵庫が2機収まる大容量のパントリーを備えた。


ブックコーナのある落ち着いた佇まいの主寝室


水まわりの混雑を避けるため、洗面室は脱衣室と分離して独立配置。



脱衣室には隣接してUR(ユーティリティルーム)を設け、家事動線が流れるように完結する機能的なレイアウトとした。
また、家族がそれぞれのペースで支度できる、ゆとりあるサニタリー計画を実現した。

エントランス横には、WIC機能を兼ね備えたシューズクローゼットをレイアウト。靴や外出用品をまとめて収められるため、迎え入れる空間としてのエントランスが常に整い、すっきりとした広がりのある上質なアプローチを実現した。







