2025#003整う、暮らし。働く、住まい。
30代ご夫婦とお子さま1人の3人家族のためのお住まい。結婚・出産を機に手狭になった住居の住み替えにあたり、売却と物件探しを同時進行、賃貸を挟まずフルオーダーリノベーションで新生活へ移行するというワンストップ計画を物件探しからサポートした。
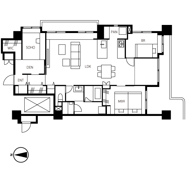
間取りは4LDKから2LDK+SOHOへ再構成。書斎やDEN(土間)、最短動線の水まわり計画により、暮らしと仕事が心地よくつながる住まいに。さらに、家庭用サウナやインナーテラス、パントリー付きキッチン、間接照明を取り入れ、都市型住居に上質なゆとりをもたらした。
子育てとテレワーク、どちらも豊かに楽しめるオンリーワンの住まいをご紹介。
- 場所
- 福岡市中央区
- 用途
- 集合住宅
- 人数
- 夫婦+子ども1人
- 構造
- RC4階/9階
- 面積
- 92.17 ㎡

テレワークにも対応した3人暮らしのために、4LDKから2LDK+SOHOへと、ゆとりのある空間へ変更した。将来的には、リビングの一角に子供部屋を一部屋追加できる計画も視野にいれた設計である。

天井に施した特徴的なアールは、ラワン合板であえて天井高を抑え、空間をゆるやかにゾーニングした。さらに有機的な間接照明を重ね、包み込まれるような上質感を演出している。


キッチンはデュエタイプで構成し、暮らしの中心として機能するようにデザイン。冷蔵庫や家電類はアールのくぐり戸の奥のパントリーにまとめて配置。長方形の白いタイルを縦に配したのはご夫婦のご要望で、縦に伸びるラインが空間の広がりを感じさせる。

エントランスから直接出入りできる離れ的な空間として書斎(SOHO)を配置。エントランスから続くDEN(土間スペース)は、多目的ストレージでありながら、ちょっとした作業にも使える柔軟な空間となった。


間接照明で落ち着いた印象の主寝室。やわらいグリーンの壁と、重厚感のあるベッドボードの対比が空間の表情に深みを与えている。


エストニアから輸入したキャビンサウナ。ロウリュも可能で、週2〜3回のペースで利用してリフレッシュしている。

シンプルにまとめた水回りスペース。


エントランスから土間を介してSOHOスペースへ。




「暮らすこと」と「働くこと」両方の楽しさを堪能できる、オンリーワンの住まいが実現した。





